GRADUATE AWARD
Final Bachelor Thesis (Smart Buildings) and Project
About me
I am a design manager that has successfully taken part in the design and delivery of multi-million euro data centre projects across Europe. Currently managing a multi-cultural team of designers and specialized in the interior fit-out package.
I studied Architectural Technology and Construction Management in Denmark, and also obtained an MBA in Architectural Management and Design in Madrid and London.
Quality and results driven data centre specialist, eager to continue my personal and professional development in this sector. Furthermore, I have extensive international experience and I am available for travel and/or relocation.
Work experience
I am currently responsible for the production of Ardmac design solutions including drawings, schedules, technical submittals, O&M and any other documentation required. Furthermore, I liase with the Client, Main Contractor, Construction Team and any other stakeholders to ensure a smooth and coordinated construction of the Data Center.
I also manage my own team of designers, including the training of new recruits and continuously offering advice, guidance and mentorship on duties and best practices, in order to successfully deliver the project.
Key Accountabilities
Key Tasks
I have previously worked with Gaeltec Utilities as BIM Manager and Assistant Site Manager of the Substation powering the Facebook Data Centre in Odense. This job has provided me with a very good insight of the construction industry and a more practical approach to my profession.
I have also worked in Vienna for PORR Design & Engineering desiging a 25000m2 multi-functional building PEMA II.
Personally
I specially enjoy the part of my job where an idea is transformed into something "buildable" and the work and design involved in that phase.
I am committed to innovation, quality and effectiveness. I actually received the local Konstruktørernes Graduate Award for the best and most innovative Final Bachelor Thesis and Project.
Natural team player with strong attention to detail and great organisational skills.
Reliable, positive and driven
Strong analytical skills
Willingness to improve and expand knowledge
Result oriented and quality conscious.
46000 m2 Data Centre Fitout Package in Odense, Denmark. Consisting of four data halls, electrical/equipment rooms and a core area in the ground floor, a mechanical air processing area in the penthouse and an admin/office building.
In this project I managed a larger team of architectural technologists, being ultimately responsible for the design of the entire fitout package. I was stationed on site, which lead to multiple challenges during the fast-paced construction period.
I actively participated in the design of

Project drawings and media remains confidential
Available images property of Facebook
26000 m2 Data Centre Fitout Package in Fredericia, Denmark. Including data centre and equipment rooms, office area and a separate security building.
I was promoted to Senior Architectural Technologist during this project, and I started managing a small team of designers.
I actively participated in the design of

Project drawings and media remains confidential
Available images property of Google
57000 m2 Data Centre Fitout Package in Odense, Denmark.
I started working in this project while construction was ongoing, which provided me with great insights and lessons learned for the future.
I participated in the design of

Project drawings and media remains confidential
Available images property of Facebook
Gaeltec Utilities Limited - BIM Manager & Assistant Site Manager at the Substation powering the Facebook Data Center in Odense.
Main tasks:
○ Overview the construction progress on site
○ Coordinate the different contractors to ensure quality and that the schedule is kept
○ Meet with client representatives and various experts relating the current project
○ Daily Site Diaries
○ Weekly Reports
○ Resource distribution
○ Health and Safety tasks, reports and coordination
○ Participation in collaborative meetings
○ Snags reports
○ Perform environmental inspections and reports
○ BIM360 checklists, issues and coordination
○ Among other technical and administrative documentation and functions
- I started as document controller but my responsibilities raised a lot in the first months of my employment at Gaeltec and therefore my title changed.
- This job has provided me with a very good insight of the construction industry and a more practical approach to my profession.
- I had the opportunity to work in an international construction site, in cooperation with some of the biggest European contractors.
- I improved a lot my coordination between the different disciplines involved in a project
- Great understanding of large scale electrical equipment

Project drawings and media remains confidential
Available images property of Facebook
16 400 m² school & kindergarten with a lot of open spaces and inspiring shapes to increment the creativity of the students. Big curtain walls provide a great amount of light, while low-E coating glass is used to prevent glare. Re-usage of rainwater and green roofs are only some of the many sustainability features of this building. Linoleum floors and colourful sound absorbent panels create imaginative patterns that make studying in this school an exhilarating experience.
Materials:
Concrete elements for load bearing components; steel profiles for lightweight walls and suspended ceiling; mineral wool, Kingspan and polystyrene for insulation purposes; façade tiles, linoleum and plaster for finishes.

I received the project right after the outline proposal stage, and I developed it until the tendering phase during the course of three months.
This involved the creation of a 3D model, scrutiny and adaptation of existing design to meet demands, selection of materials, calculations of statics, ventilation, heating, drainage, daylight, fire analysis, budget estimations, etc.
The main challenge of this project was its size and shape for the reduced amount of time that I had to develop it. The shapes caused problems with lighting distribution and escape route allocation, as there where very narrow areas, a lot of un-used spaces, and sometimes not enough space for the main functions of the building. However, all of these and more issues were solved successfully, resulting in a very artistic and inspiring building that is, at the same time, practical and sustainable.
| Layout Plans | Fire Plans | H&S Plan |
| Component Details | Wall Details - Revit | Construction Joints |
| Ventilation | U-values | Drainage |
| Windloads | Deadloads | Reverberation |
| Moisture | Energy Framework |
Time Planning:
| Design Phase Time Plan | Construction Time Plan |
PORR Design and Engineering - Architecture team intern

Renovation and refurbishment of 115-year-old technical school into a residential building.
Basic Information:
- 5 storey building, including basement
- Built area: 803 m²
- Built in: 1899
- Main building materials: brick and stone

After the refurbishment…
16 3-bedroom apartments with and a size of 140-160 m² were created.
The basement was equipped with a common laundry room and a storage room for each apartment, and there is also space for a small shop that could be used as common space for the tenants instead.
The client wants to refurbish and renovate this educational institution in the centre of Odense, and create modern housing "noble residences".
Furthermore, there is a commitment to develop the spacious and well-appointed residential unit through daylight, air, and "inside and outside" options through the use of balconies for the apartments as a way to provide quality housing.
This may result in spacious and well-proportioned accommodation units, with trans-illuminated living room and direct connection between the kitchen and living.
The dwellings will be available for residents with disabilities and appear as modern housing.
The developer demands that buildings - after the renovation – will present themselves with fine architectural qualities and proportions in respect for the history and architecture.
This project was developed in a group of 2 people during the course of 3 months.
The main challenges of this project resided in its location (next to the rivet - underground water), the age of the building (adaptation of such an old building to fit modern requirements), and the fact that the amount of alterations allowed was very limited.
The first part of the assignment included measuring the existing building and creating a 3D model. Afterwards, based on a thorough analysis (HVAC, water supply and drainage, daylight, sound, accessibility, etc), the building was adapted to the current regulations and transformed into luxury apartments.
Some of the tasks included planning demolition and temporary support, determination of structural elements and improvement of existing constructions to avoid moisture, cold bridges, mould, etc.
As it was important to maintain the facades intact, due to the cultural heritage of the building, moisture and insulation problems appeared, together with some accessibility issues.
It was all solved to the greatest possible extent by the strategic placement of carefully designed constructions, restoration of specific elements like the façade and the windows, and the addition of comfortable finishes and new building systems (HVAC, elevator, fire detection, garbage disposal, etc.).
| Layout Plans | Fire Plans | H&S Plan |
| Component Details | Demolition and Temporary Support | Structural Analysis |
| Ventilation | U-values | Loads |
| Radiator Dimensioning | Life Cycle Costs of Constructions | Reverberation Calculations |
Time Planning:
| Design Phase Time Plan | Construction Time Plan |
Economy:
| Detailed Budget | Profitability Calculations |
Schematic design of a Kindergarten and Nursery based on both passive and active sustainability methods. The masterplan of the area and the triangular plot conditioned the layout. However, it was accomplished to reuse water, gain power from the sun, use recycled and recyclable materials... Furthermore, studies were prepared from the conceptual phase of the design in order to acquire LEED or DGNB certifications. This lead to a building that is not only practical but dynamic and energy efficient.



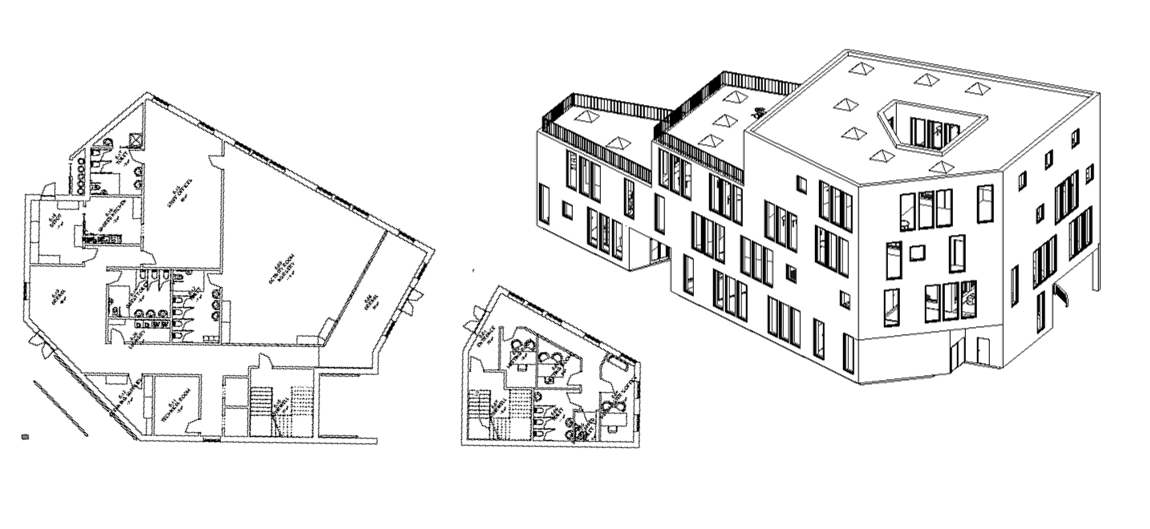
Combination of Residential and commercial functions in a modern building that suits perfectly in the centre of a classical but yet contemporary city like Odense. The building integrates several finishing materials like black slates, red bricks, oak wood and stainless steel and they all fuse together to create the unique identity of this construction.
It constitutes 10 luxurious apartments and 2 gorgeous penthouses with access to a roof terrace. The apartments' areas range from 94 to 271 m² (3-5 rooms) and there is also a café/shop of over 130 m² at street level. All of these surrounding an internal courtyard that provides harmony to the whole compound.
This project was developed by a 3-person team from the Outline Proposal (developed by an architecture studio) until the Detail Project or Tendering phase, where each member of the team worked solo focusing on one element, in my case it was the modular stairs. This area of the project was developed further, in the perspective of a contractor applying for that tender.
The main challenge in terms of design and construction selection, was to meet all regulations while exceeding client expectations (mostly in materials and energy efficiency). Moreover, the combination of residential and commercial areas caused some issues relating sound insulation and technical installations of a building that was not originally planned for such functions
Practically, the biggest difficulty was the creation, combination and coordination of 5 different models (architectural, systems, structure, landscape, and modular) to allow the different disciplines to work together without affecting the other parties' previous work.
| Layout Plans | Fire Plans | H&S Plan |
| Details | Systems Drawings | Site Plan |
| Ventilation | U-values | Loads |
| Drainage | Energy Framework |
Time Planning:
| Design Phase Time Plan | Construction Time Plan - Vico Office |
Economy:
| Detailed Budget | Cost Plan - Vico Office |
Design manager that has successfully taken part in the design and delivery of multi-million euro data centre projects across Europe. Currently managing a multi-cultural team of designers and specialized in the interior fit-out package.
I studied Architectural Technology and Construction Management in Denmark, and also obtained an MBA in Architectural Management and Design in Madrid and London.
I am a quality-and-results-driven data centre specialist with extensive international experience and available for travel or relocation.
Baccalaureate Certificate Science and Technology
(BA) Architectural Technology and Construction Management
(MBA) Architectural Management and Design
Global History of Architecture
Smart Cities
Livable
Future Cities
Future Cities